手機看文章
睿和云端預售許可證信息:(2022)晉商房預售同字第36號
本頁面的預售許可證信息為當前信息發布時所展示,僅供參考。最新信息請前往樓盤主頁查看。
摘要:對愛情最好的詮釋,莫過于一屋兩人,三餐四季。而婚房則是繞不開的話題,它提供的不僅是婚后居住的場所,更是婚姻生活的歸屬感和幸福感。那么在大同,年輕人究竟應該如何選婚房呢?
咨詢電話:400 876 0352 轉 0343
主城華宅 開啟五優幸福生活
愛情不止浪漫的美好,婚后更多的是衣食住行的日常。
睿和云端擇址主城繁華地帶,以醇熟配套,開啟五優婚后生活。

配套組圖
——西鄰十里御河生態園,推窗瞰景,擁抱綠色與休閑;
——恒安街+御河東路快速通道,便捷交通,暢達全城;
——萬達廣場商圈一站式吃喝玩樂購體驗,便捷生活;
——大同一醫院、五醫院臨而不靠,給全家醫療保障;
——實驗小學文慧分校、大同二中、大同大學等名校環繞,為下一代教育奠定良好基礎。
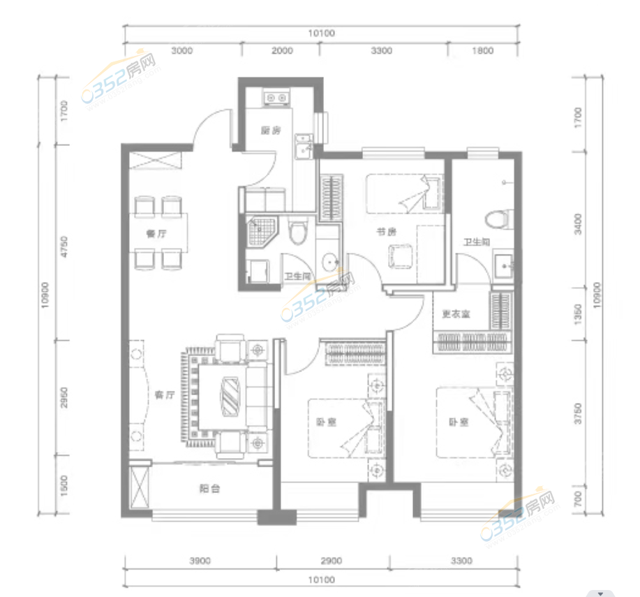
建面約125㎡實用三居
擇一城終老,遇一人白首,愛情最好的表達,就是給愛一個家!
睿和云端建面約125㎡瞰景戶型,三室兩廳兩衛格局,正符合當下年輕人對大空間、闊尺度的基本要求,一步到位滿足家庭周期成長需求。

戶型圖
戶型方正,舒闊寬廳,盡顯居者的敞闊氣派,不論是親友相聚把酒言歡,還是茶余飯后小憩閑談,都能有更加從容的享受。
餐客廳一體化設計,讓空間融會貫通,生活動線流暢自然,提高空間利用率,亦提升了家的通透性和明亮感。
L型廚房,科學的操作流水線,不僅能夠節約寶貴的時間,更能帶給住戶舒適的烹飪體驗感,讓制作美味成為一種享受。
主臥享受套間禮遇,擁有獨立衛生間和衣帽間,日常起居能做到從容不迫。保證私密性的同時,也讓生活更加精致起來。
實景準現房 讓幸福更近一步
此外,選擇睿和云端,幸福更是無需久等。

實景圖
依托睿和興業的品牌實力和山西四建的匠心精筑,睿和云端以實景準現房的姿態呈現,對于購置婚房的置業者來說,不僅能親鑒項目的實景品質,還能更快實現“一屋兩人三餐四季”的幸福生活。

效果圖
5.20告白季,最好的禮物就是給愛你的TA一個家,給愛情一個棲身之地!睿和云端,520愛你婚房節,適齡青年享超級優惠,成交送婚戀大禮包,建面約125㎡瞰景美宅,期待見證你們的美好生活!