大同新建平城區四十七校武定校區 規劃已出爐
發布時間:2021-04-29 來源:大同政府網 編輯:RUI
手機看文章
摘要:大同市新建平城區四十七校武定校區,項目位于武定門內街南側,目前建設項目規劃許可公示已出爐,具體情況來了解一下吧!

規劃許可公示牌
項目名稱:大同市平城區四十七校武定校區
建設單位:大同市平城區第四十七小學校
設計單位:同濟大學建筑設計研究院有限公司
項目位置:武定門內街南側
用地面積:21595㎡
建筑面積:20488.57㎡
地上建筑面積:7222.29㎡
地下建筑面積:13266.28㎡
建筑密度:18.15%
建筑高度:不大于9米
容積率:0.33
綠地率:35%
停車位:385
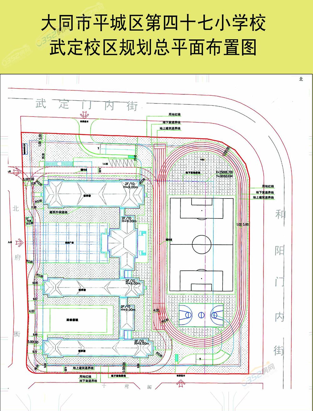
以下是大同市平城區四十七小學校位置圖及總平面圖布置圖:

總平面圖布置圖

位置圖
大同市平城區第四十七小學校武定分校的修建是為了適應大同城市發展,改善平城區的教育教學條件,緩解現有學校學生擁擠,大班額授課的壓力,將有效解決古城內小區及周邊居民孩子入學問題。