大同市平城區第十三小學校新建項目規劃出爐啦
發布時間:2021-03-19 來源:大同政府網 編輯:謝明亮
手機看文章
摘要:號外號外!大同將新建平城區第十三小學校,目前建設項目規劃許可公示已出,詳情快來了解一下吧!
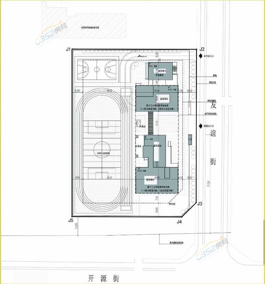
大同市平城區第十三小學校新建項目位于大同市開源街北側、友誼街西側,由清華大學建筑設計研究院有限公司規劃設計,項目總占地面積10984.17㎡,總建筑面積10765.09㎡,其中包括綜合樓、辦公樓、教學樓等,項目容積率0.74,綠地率35%,建筑密度17.5%,機動車停車位40輛(地下),可容納師生人數1136人。

以下是大同市平城區第十三小學校新建項目總平面布置圖及控規:

平面布置圖

日照平面等時線圖

控制性詳細規劃圖

項目地理位置
以上就是平城區第十三小學新建項目的具體情況啦,待校區建成后,將有效緩解東信區域教育資源緊缺的現狀,滿足周邊小區居民對優質教育的需求。0352房網將會持續播報相關建設情況,敬請關注!