大同操場城街新增便民市場 建設規劃新鮮出爐
發布時間:2019-08-03 來源:大同市規劃和自然資源局 編輯:李亞婷
手機看文章
摘要:為加強建設工程的監督管理、維護社會公眾利益。實施陽光規劃,根據城鄉規劃法律法規的有關規定,現將擬批準的“大同市操場城街便民市場項目”規劃審批情況予以公示,具體內容如下:
項目名稱:大同市操場城街便民市場項目
建設單位:大同市上晉商貿有限公司
設計單位:廣州市弘基市政建筑設計院有限公司
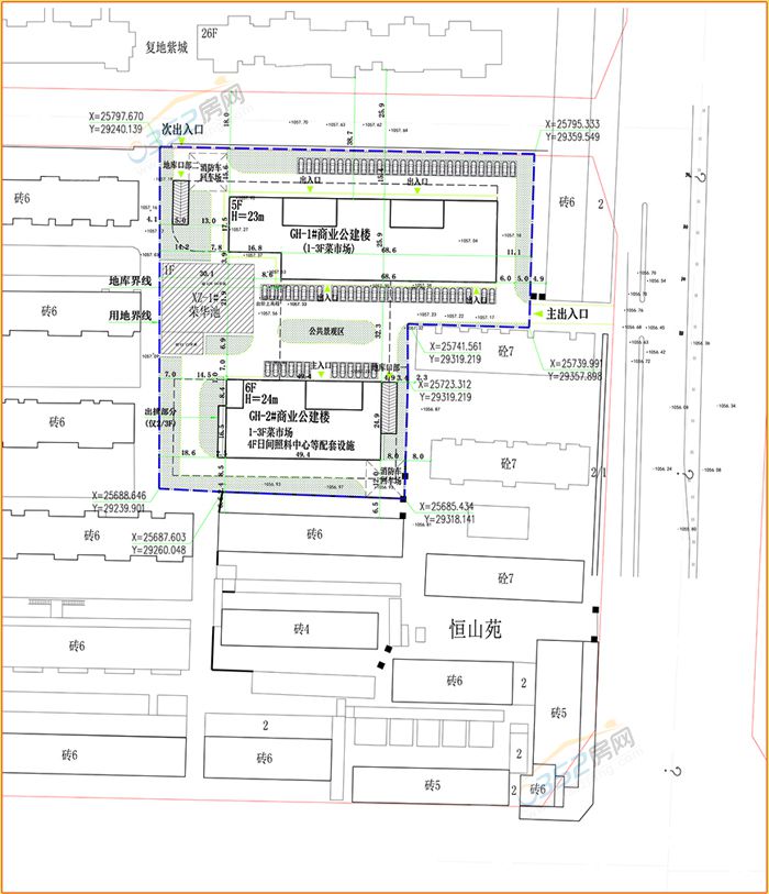
項目位置:大同市操場城街109號地塊

操場城街便民市場規劃總平面布置圖

地塊位置圖

規劃詳情圖
建設便民市場對于周邊小區的居民們可謂一大幸事,出門采買更加方便快捷,再也不用下班跑大老遠去買菜啦!真可謂是城市規劃好,下班回家早啊!隨著城市各方面配套日益完善,大同市民們的生活幸福指數也將越來越高!