手機看文章
摘要:對于不少上了年紀的大同市民們來說,大同的城建發展史當中,蘊藏了“老大同人”居住環境與生活方式的更迭和變遷。從古老的四合院到如今的高層建筑,戶型的改變,為我們的生活帶來了怎樣的變化?

大同戶型變遷
(圖片來源于網絡,版權歸原作者所有)
20世紀50年代建國前

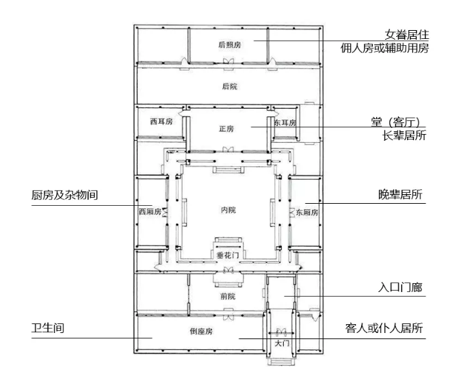
跨越歷史長河的合院建筑,成為了我國最為經典的居住形式,格局為一個院子四面建有房屋,通常由正房、東西廂房和倒座房組成,講究等級秩序。

四合院示意圖
(圖片來源于網絡,版權歸原作者所有)
而大同四合院四面房屋各自獨立,疏密有致,不像北京四合院四面房屋拐角處皆游廊連接,也不像南方許多四合院,擠擠窄窄,成“天井”庭院。格局上與我們當下戶型在空間組織上的原則基本一致:公私分離、動靜分離、潔污分離,由此可見,現在所流行的戶型是人們長期生活經驗積累的結果。
50年代至70年代


合住型住宅示意圖
(圖片來源于網絡,版權歸原作者所有)
建國初期,百廢待興,此階段大同住宅戶型設計主要是考慮低造價地解決住房問題,為了解決大量工人的居住問題,興建合住型住宅,就是以前的單身宿舍。中間一個走廊,住房分別在走廊兩邊(單間),門對門,公用廁所、公用廚房。
80年代改革開放

示意圖
(圖片來源于網絡,版權歸原作者所有)
改革開發經濟飛速發展,大同市民們對于居住空間的需求開始有了家庭的概念,渴望“成套房”。在80年代中期,城市里許多人都住進了單元房,擁有了私人廚房和衛生間。當代的主流商品房為80㎡以下,不配備電梯,兩室或三室,一個衛生間,無廳或客廳、餐廳多在一個空間混合使用,臥室為主要活動空間。這個時期大同有一些塔樓,完全朝北、東西向,為了擠進更多套房子,格局不方正,一些奇葩戶型也多出自于八九十年代的塔樓。
90年代

示意圖
(圖片來源于網絡,版權歸原作者所有)
改革開放進行了10年,城市變化日新月異,大同市民們開始接觸更多的商品套房。原來的客廳無法放置更多的家具,會見客人要在臥室,存在諸多不便。在七八十年代戶型基礎上,開始有了居寢分離的概念,客廳作為家庭娛樂、用餐的起居活動空間獨立出來。當時的戶型和現在已經很接近了,開發商開始研究戶型方正,南北通透,采光等滿足舒適性的要求。只是房子沒有現在貴,也沒有現在高,一般沒有電梯,裝修也很便宜。
21世紀初

示意圖
(圖片來源于網絡,版權歸原作者所有)
20世紀末我國經濟迅猛發展,推動了房地產行業的發展,大同市民們開始探索更加合理的居住形式。開發商競爭加劇,除了拼戶型的舒適性,還要拼誰贈送面積多,復式、躍層戶型也在這個階段陸續出現。
21世紀初至20年代

示意圖
(圖片來源于網絡,版權歸原作者所有)
近十年,大同樓市的戶型設計更為精細、多樣,充分展現開發商對居住模式的深入理解以及人文關懷。戶型面積、面寬、進深均有所增大,戶型功能日趨完善,雙衛出現在越來越多的戶型當中;躍層、復式、LOFT也逐漸流行,富力、綠地、恒大等外來房企紛紛入駐,為大同購房者帶來更多選擇,這是一個百花齊放、百家爭鳴的時期。
未來
隨著時代的進一步發展,人、住宅與自然、科技之間形成一種融洽的共生關系,充滿綠色和智慧的生活方式。目前大同住宅市場高科技智能家居技術日益成熟,配套也愈加完善,超低能耗的裝配式住宅示范項目,及新型居家養老式住宅項目逐步走進大眾的視野,市民們的選擇面更廣。未來立體式住宅、空中別墅等項目產品出現也未可知,迎接大同購房者的將是充滿智慧科技的,具有前瞻性、創新性、顛覆性的未來生活方式。

透過大同住宅戶型結構的變化,我們看到了大同人居方式的變遷,相信在不久的將來,我們的居住環境會大大的改善,居住品質也會顯著提高,對于未來大同將會出現的住宅形式,網友們你有什么看法呢?