大同同泉路糖廠立交改建 工程正式開始施工!
發布時間:2022-04-14 來源:北京市政集團三處大同項目部 編輯:鄭倩
手機看文章
摘要:近日,北京市政集團三處大同分公司成功中標大同市同泉路糖廠立交改建工程,為期270天的危橋改建工程正式開工,詳情如下。
工程概況
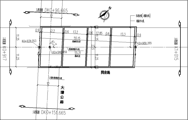
大同市同泉路糖廠立交橋改建工程,屬于危橋改建工程,路線總長98米,工程地點位于同泉路跨大塘公路處,新建結構形式為箱涵結構。

實景圖
工程內容
舊橋拆除工程、新建箱涵工程、附屬工程、排水工程等。
開工日期:2022年4月7日
竣工日期:2023年1月1日
工程計劃工期:270天

施工圖
該道路的建成將解決現狀糖廠立交橋的通行安全隱患,保障同泉路的正常通行和大塘路遠期擴寬規劃,更有助于溝通大同平城區與云岡區之間的交通聯系!