中央美域西邊隔魏都大道與兒童公園遙遙相望,住在中央美域高層區,可俯瞰兒童公園全景,公園就在家門口,在這里您可以呼吸自然的味道,享受園林的恬靜;中央美域北邊隔北都街看歷史古韻南城墻,在大同,這份人文情懷,這份歷史沉淀,只有居住在城墻邊,才能切身感受到,大同古城將按照明朝時城墻樣貌重建,屆時大同古城將會變成集歷史文化、觀光旅游、休閑娛樂、商業購物為一體的人文地標,會極大帶動大同城市的旅游經濟發展,所在區域的未來價值空間不言而喻。
中央美域西邊隔魏都大道與兒童公園遙遙相望,住在中央美域高層區,可俯瞰兒童公園全景,公園就在家門口,在這里您可以呼吸自然的味道,享受園林的恬靜;中央美域北邊隔北都街看歷史古韻南城墻,在大同,這份人文情懷,這份歷史沉淀,只有居住在城墻邊,才能切身感受到,大同古城將按照明朝時城墻樣貌重建,屆時大同古城將會變成集歷史文化、觀光旅游、休閑娛樂、商業購物為一體的人文地標,會極大帶動大同城市的旅游經濟發展,所在區域的未來價值空間不言而喻。
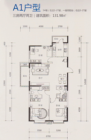
中央美域風尚樣板房建筑面積為132.21㎡,戶型為3室2廳1衛2陽臺,戶型方正,南北通透,格局緊湊,樣板房最大亮點之一是房屋設計以“實用、舒適”為基本設計理念,最大程度的提高戶型內部的實用率。“L”形的廚房設計更合理,在廚房里面有一個朝北的陽臺,通風、采光兩不誤;4.2米大間距的客廳以及餐廳客廳分開的大廳布局使得功能更加專一;獨具匠心的書房設計,推拉式窗戶使得采光通風更有保障,而且從色調到材質,書房都體現出雅靜、沉穩的特征,人在其中不會心浮氣躁;大間距的客廳連接270°的超視角的觀景臺,寬大的陽臺做點小的水榭花草,生活是非常愜意閑適的;主臥的窗戶超南,裝飾溫馨,空間適中、舒適感很好;次臥是兒童房,窗戶向東,正如孩子是早晨東升的太陽,童趣元素、軟包裝修、圓角的家具不僅溫馨更加呵護孩子的安全。
